يبلغ طول ممر Huangmaohai عبر البحر 31 كيلومترًا وهو جزء مهم من الامتداد الغربي لجسر هونغ كونغ - تشوهاى - ماكاو.

تتشرف شركة Horizon C&D بالمشاركة في المشروع ، وقد نفذت أكثر من 10 سدود مشتركة إجمالاً لسدام الرصيف الرئيسي Z4 # و Z5 ~ Z6 # سدود الرصيف الإضافية و 1 ~ 4 # و 9 ~ 15 # cofferdams جسور الاقتراب المائي مشروع السد. كيف تغلب Horizon C & D على الرياح والأمواج في البحر وأكمل سد الوعاء بنجاح؟
الخطوة الأولى هي مواجهة مشروع السوبر
كما يقول المثل ، فإن معرفة الذات ومعرفة العدو لن تنتهي أبدًا بمئات المعارك. مشروع هوانغ ماوهاي له أشكال مختلفة ، غرس عميق وطبقة طينية عميقة. إنه حقًا "عظم" ليس من السهل مضغه. للتغلب عليه هذا المشروع الخارق يجب أن نفهمه من جميع النواحي:

الطقس: تعتبر الظروف الهيدرولوجية في منطقة البحر معقدة نسبيًا وتتأثر بشكل كبير بالطقس الكارثي الذي تسببه الأعاصير. عن طريق البحر ~ ما قاله رئيس الإعصار هو ما (نشر الأيدي) ؛
السرعة: يتميز الحوض الشرقي حيث تقع القناة الشرقية بأعلى سرعة ، وخلال اندفاع عاصفة "مانغوستين" ، يرتفع منسوب المياه بسرعة ويزداد المد بشكل أسرع (دعني أرى من يتوسع) ؛
الموجة: الحد الأقصى لارتفاع الموجة السنوي Hmax = 3.4 متر ، وارتفاع الموجة الفعال المقابل هو 2.24 متر. هل سبق لك أن شاهدت الرياضات الشديدة لمطاردة الأمواج في الفيديو القصير؟ يمكنك أن تتخذ قرارك ~
منسوب المياه: أعلى مستوى للمياه في التاريخ هو أكثر من 3 أمتار ، وهو ما يعادل كل المياه الموجودة في الطابق الأول. وأنت تقف على الشرفة في الطابق الثاني وتشعر أن المياه ستغطي مشطك (بشرط أن تكون أول الأرضية ليست قصيرة ، وإلا فإنها لن تغطي عجولك.) ؛
الجيولوجيا: الطمي بشكل أساسي ، والتربة المتماسكة ، والحصى في البحر والأرض ، Emmm ... إنه ناعم ولزج ، رطب وغير مستوٍ ، ويشعر بالسوء للغاية!
الخطوة الثانية ، تصميم cofferdam صارم للتعامل مع المشاكل الفائقة
سد الرصيف الرئيسي Z4 # لجسر Gaolangang عبارة عن سد لأكوام أنابيب فولاذية مقفلة ، وقفل الأنبوب الفولاذي يستخدم قفل من النوع C-T. أكوام أنابيب الإغلاق من النوع C-T جيدة في حل المشكلات الصعبة في السدود على شكل قوس وتتكيف بشكل أفضل مع احتياجات الزوايا.


عندما يتم بناء الغطاء ، يتم تثبيت الدعامة الداخلية العلوية ، وامتصاص الطين للحفر ، ويتم سكب الخرسانة السدودة القاع تحت الماء. تم نصب أول دعامة فولاذية على ارتفاع + 4.5 م ، مسترشدة بالمدادة ، ويتم إنشاء أكوام من الأنابيب الفولاذية. بعد تثبيت الركائز في مكانها وإغلاقها ، يتم امتصاص الطين إلى ارتفاع التصميم ، ويتم سكب الغطاء الخلفي الخرساني تحت الماء.

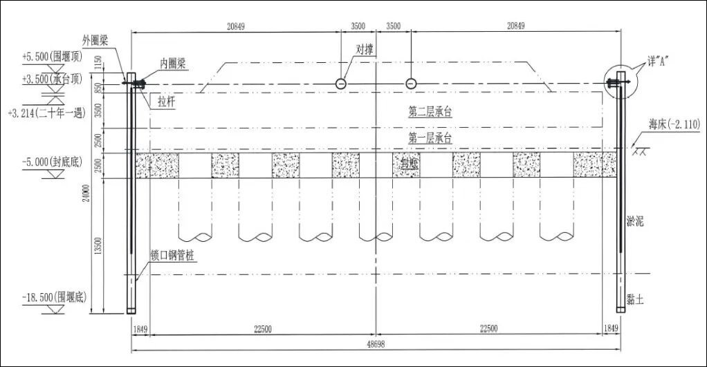
خطة تخطيط سد كومة الأنابيب الفولاذية للرصيف Z4 # لجسر Gaolangang (عرض الخطة)

تصميم سد كومة الأنابيب الفولاذية للرصيف Z4 # لجسر Gaolangang (عرض الارتفاع)

بناء سد كومة من الأنابيب الفولاذية للرصيف الرئيسي Z4 # لجسر Gaolangang
تم بناء سدود الأعمدة الجانبية للأرصفة الإضافية الجانبية Z5 # ~ Z6 # لجسر Gaolangang باستخدام سدود كومة من الألواح الفولاذية Larsen IVw ، ويتم ترتيب السدود في شكل مثمن.

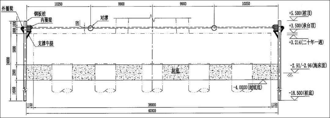
خطة تخطيط سد كومة من ألواح الصلب لأرصفة Z5 # و Z6 # لجسر Gaolangang (عرض الخطة)

خطة تخطيط سد كومة من ألواح الصلب لأرصفة Z5 # و Z6 # لجسر Gaolangang (عرض الارتفاع)
تخطيط الأرصفة من 1 إلى 15 # من جسر الاقتراب الأوسط هو نفسه. خذ الرصيف رقم 6 # كمثال (أدنى ارتفاع) ، اضبط أولاً الحافة على الغلاف الفولاذي ، وقم بتجميع ثلاثة دعامات فولاذية ، وبعد ذلك وضعها في مكانها ، خذ المدادة كدليل لأكوام ألواح الصلب لبناء الإطار ، ثم تمتص الطين لتغطية القاع.

تصميم سد كومة الصفائح الفولاذية للأرصفة 1 # ~ 15 # من جسر الاقتراب الأوسط (مخطط الطابق العلوي)

خطة تخطيط سد كومة الصفائح الفولاذية للأرصفة 1 # ~ 15 # من جسر الاقتراب الأوسط (مخطط جزئي للطابق العلوي)
الخطوة الثالثة ، التطبيق المبتكر لطريقة التفرع الأولى للسد في الماء
يُقترح استخدام طريقة slideway لخفض دعامة المدادة. أولاً ، قم بلحام الفولاذ H488 على الغلاف كدعم داخلي للسد ، وخفض أحذية التوجيه ، وخفض نظام الدعم على دفعات ، ثم أدخل ركائز الألواح الفولاذية ودفعها في مكانها.

النقطة الأساسية في عملية البناء هي خفض المدادة من خلال عملية تعليق الأحذية التوجيهية. إن حذاء التعليق الدليلي مصنوع من فولاذ H488 ، والوسادات ، وكوربلات الدعم. وقد تم تجهيز كل سد مع 10 أحذية تعليق دليل ، وأحذية تعليق دليل يتم لحامها على الغلاف الفولاذي ، ثم يتم خفض الدعامات الثالثة والثانية والأولى إلى ارتفاع التصميم على طول أحذية تعليق التوجيه (يتم لحام الأنابيب الدائرية 10 φ 426 مم فوق المدادة الفولاذية الثالثة كهيكل دعم عمودي) ، وتم الانتهاء من تركيب الدعم الداخلي ، ثم قم بتطبيق ركائز صفائح فولاذية للإغلاق.
الخطوة الرابعة ، منصات تحت الماء للتعامل مع فجوة الفضاء
نظرًا لاستخدام طريقة الفرع الأول ، ستكون هناك فجوة معينة بين المدادة وكومة الصفائح الفولاذية ، لذلك يجب تنفيذ الحشو تحت الماء.
من أجل توفير الوقت والجهد وتقليل التكاليف ، طورت شركتنا نوعًا جديدًا من الإسفين يستخدم خصيصًا للوسادات تحت الماء ، وهو أكثر ملاءمة وفعالية من وسادات اللحام التقليدية تحت الماء.


يتكون الإسفين من الأجزاء العلوية والسفلية. يتم خفض الإسفين السفلي بحبل ويتم تعليقه على لوحة الحافة الخارجية للمدادة. ويحمل الغواصون الإسفين العلوي ويدخلونه في الجزء العلوي من الإسفين السفلي لجعل الاثنين مناسبين معًا. ، شدوا بين المدادة وكومة الصفائح الفولاذية.
باختصار ، حيثما توجد فجوات ، سوف تتعطل ، ويجب التعامل مع كلمة الاستقرار بإحكام!
الخطوة الخامسة ، مادة خاصة مقاومة للماء للتعامل مع مشكلة القفل
الأقفال المستخدمة في سد الحاجز تحتاج إلى معالجة خاصة لوقف الماء ، لذلك ، وفقًا لتجربتنا ، تتعاون شركتنا مع كرات القطن الطينية كمواد قفل وإيقاف الماء ، والتي يمكن أن تحقق تأثير توقف الماء الجيد.

ملف الشركة
Shanghai Horizon Construction and Development Co.، Ltd. ("Horizon C&D" باختصار) هي مزود خدمة تشغيل معدات شامل أنشأه Far East Horizon (03360.HK). بناءً على معدات ومواد البناء والتشييد ، فهي ملتزمة بتوفير يستمر العملاء الذين لديهم خدمات شاملة متعددة الوظائف ومتعددة الأوجه ودورة كاملة ، من خلال تخطيط خطوط المنتجات المتعددة ، التي تغطي شبكة التشغيل الوطنية وقدرات التشغيل المركبة ، في خلق قيمة للعملاء.
تمتلك Horizon C&D أنظمة دعم جديدة وأنظمة قوالب جديدة ومنصات عمل جوية ومعدات أخرى ، مثل معدات الطرق ومعدات الطاقة والرافعات الشوكية ، بإجمالي أصول تتجاوز 10 مليارات يوان. بالنسبة للبناء البلدي ، وبناء المساكن ، وبناء النقل ، والهندسة البحرية ، والتصنيع الصناعي ، والطاقة الخضراء ، والتخزين والخدمات اللوجستية ، والثقافة والفن ، والترفيه التجاري ومجالات البناء الأخرى ، نحن نقدم للعملاء خدمات شاملة لتشغيل المعدات.Editor/Ma Xue
تعليق
أكتب شيئا~