黄茅海跨海通道全长31公里,是港珠澳大桥西拓通道的重要组成部分。

宏信建发有幸参与项目,承接了高栏港大桥Z4#主墩围堰、Z5~Z6#边辅墩围堰,以及水中引桥1~4#、9~15#墩围堰共计10多个围堰项目。宏信建发如何克服海上风浪,并成功地完成围堰呢?
第一步,直面超级工程
正所谓知己知彼百战不殆,黄茂海项目承台形式多样,埋置深度深,淤泥层深厚,的的确确是块不好啃的“骨头”,要想攻克这个超级工程,我们要从方方面面了解他:

天气:海域水文条件相对复杂,受台风带来的灾害性天气影响较大。海边嘛~ 台风大佬说啥是啥(摊手状);
流速:以东航道所在东槽流速最大,且“山竹”风暴潮期间,水位抬升迅速、涨潮较快(让我看看是谁在膨胀);
波浪:年度最大波高Hmax=3.4m,对应的有效波高为2.24m,见过短视频里逐浪的极限运动吗?可以脑补一下~
水位:历史最高水位3米多,相当于一楼全部进水,你站在二楼的阳台,感觉水会没过你的脚背(前提是你一楼的楼层不能矮,要不然就是没过小腿了);
地质:海陆交互相淤泥、黏性土、砾砂为主,Emmm…就是又软又粘腻,潮湿不平整,手感极差!
第二步,严谨围堰设计应对超级问题
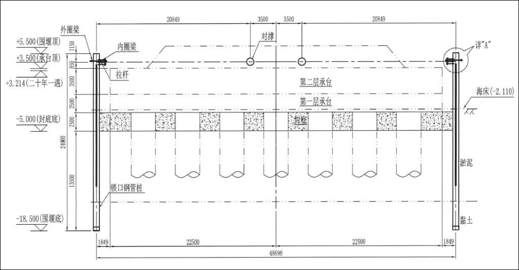
高栏港大桥Z4#主墩围堰为锁口钢管桩围堰,钢管锁口采用C-T型锁口。C-T型锁口管桩善于解决在弧线型围堰中施打较为困难的问题,更好地适应转角需求。


承台施工时,安装顶层内支撑,吸泥开挖,灌注水下封底混凝土。在+4.5m标高架设第一道钢支撑,以围檩为导向,施打钢管桩,沉桩到位合拢后,吸泥到设计标高后,水下浇筑混凝土封底。

高栏港大桥Z4#墩钢管桩围堰布置图(平面图)

高栏港大桥Z4#墩钢管桩围堰布置图(立面图)

高栏港大桥Z4#主墩钢管桩围堰施工
高栏港大桥Z5#~Z6#边辅墩围堰采用拉森Ⅳw型钢板桩围堰施工,围堰呈八边形布置。

高栏港大桥Z5#、Z6#墩钢板桩围堰布置图(平面图)

高栏港大桥Z5#、Z6#墩钢板桩围堰布置图(立面图)
中引桥1~15#墩布置形式一致,以6#墩承台为例(标高最低),首先在钢护筒上设置牛腿,拼装三道钢支撑,依次下放到位后,以围檩为导向架施工钢板桩,再吸泥封底。

中引桥1#~15#墩钢板桩围堰布置图(上层平面图)

中引桥1#~15#墩钢板桩围堰布置图(上层平面局部图)
第三步,水中围堰先支法创新应用
拟采用滑道法下放围檩支撑。首先在护筒上焊接H488型钢作为围堰内支撑下放导向挂靴,分批次下放支撑系统,到位后再插打钢板桩。

该施工工艺的关键节点在于采用导向挂靴工艺下放围檩,导向挂靴由H488型钢、垫块、支撑牛腿制作而成,每个围堰配置导向挂靴10件,将导向挂靴焊接在钢护筒上,而后依次将三、二、一道围檩支撑沿导向挂靴下放至设计标高,(第三道钢围檩上方焊接10根φ426mm圆管作为竖向支撑结构),内支撑安装完成后施打钢板桩至合拢。
第四步,水下抄垫应对间隙空间
由于采用先支法工艺施工,围檩与钢板桩之间会存在一定间隙,必须进行水下抄垫。
为了省时省力降低成本,我司研制出一种专门用于水下抄垫的新型楔块,比传统的水下焊接垫块更便捷有效。


该楔块由上下两部分组成,下楔块用绳索下放将其挂于围檩外侧翼缘板上,潜水员携带上楔块在水下操作将其塞入下楔块上部,使两者贴合,将围檩与钢板桩之间抄紧。
简而言之,有缝隙的地方卡卡死,稳定这个词,必须拿捏得死死的!
第五步,专项止水材料处理锁扣问题
围堰所用锁扣需要做专项止水处理,因此根据经验,我司配合以黏土棉花球作为锁扣止水材料,可达到良好的止水效果。

公司简介
上海宏信建设发展有限公司(简称“宏信建发”)是远东宏信(03360.HK)旗下设立的设备综合运营服务商,以建设、施工类设备及材料为基础,致力于为客户提供多功能、多方位、全周期的综合服务,通过多产品线的布局,覆盖全国的运营网络及复合经营能力,持续为客户创造价值。
宏信建发拥有新型支护系统、新型模架系统、高空作业平台及其他设备,如道路设备、电力设备及叉车,资产总额超百亿元。面向市政建设、房屋建设、交通建设、船舶海工、工业制造、绿色能源、仓储物流、文化艺术、商业娱乐等建设领域,为客户提供设备运营综合服务。(转载请注明见道网www.seetao.com)见道网工程栏目编辑/马雪
评论
写点什么吧~